1 164 places. C’est la promesse de la nouvelle jauge de la grande salle après les travaux de rénovation de la Laiterie. Dans son format actuel, 870 places, la salle de concert peine à équilibrer financièrement ses soirées, en raison d’une jauge trop faible.
Le projet d’agrandissement a été confié à l’agence d’architecture Weber Keiling associés et son budget devrait être de 9,5 millions d’euros, financés par la Ville de Strasbourg. Les plans de la future Laiterie ont été dévoilés ce mercredi 27 mars par les architectes.

L’entrée principale du public sera déplacée à l’ancien accès du « Hall de la vache », rue du Ban-de-la-Roche, pour fluidifier le trafic. Un choix qui évacue du bâtiment la deuxième salle, le Club. Le plafond va être élevé pour augmenter la jauge de la grande salle.

Un nouvel espace de billetterie et de vestiaire sera également construit pour éviter d’avoir un seul flux de public. Le hall à côté du bar gardera sa fonction de déambulation et de distribution vers la grande salle.

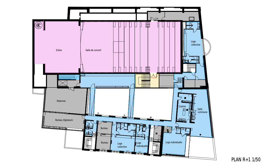
Le premier étage est également remanié pour séparer les flux techniques et publics tout en donnant davantage d’espace aux artistes. En plus de son agrandissement, la Laiterie accueillera une toiture et une façade végétalisée, des panneaux photovoltaïques et des surfaces au sol perméabilisées.


Chargement des commentaires…